Скачать каталог 2023г.
Полезная информация
О компании
Стандартные конструкции
Статьи
Документы
Видеоруководства
Проекты
Контакты
Ваш заказ
0 товаров
Оплата и доставка
КОРЗИНА
+375 (29) 633-51-55
+375 (17) 394-94-70
(72) - гор.
Назар
- для юр. лиц и оптовых продаж
e-mail:
steklofurnitura@mail.ru
+375 (29) 633-51-20
+375 (17) 394-94-70
(72) - гор.
Виктория
- для физических лиц
e-mail:
steklofurnitura@gmail.com
Новинки
+
Алюминиевые профили для стекла
<
Stif Glass
Зажимной профиль
Опорные профили
Уплотнители
<
Titan
Зажимной профиль 40мм
<
HAG
Опорные профили
+
Фурнитура для душевых кабин
<
Stif Glass
Направляющие
Душевые комплекты
Коннекторы
Петли
Ручки, кнобы, защёлки
Стабилизационные штанги
Опорные штанги - круглая труба Ø18мм
Опорные штанги - квадратная труба 19х19мм
Опорные штанги - прямоугольная труба 30х10мм
Порожки
Уплотнительный ПВХ профиль
Магнитный ПВХ профиль
Фурнитура из цинкового сплава
<
Titan
Ручки и кнобы
Петли
Профиль уплотнительный
Система опорных штанг
+
Фурнитура для межкомнатных дверей
<
Stif Glass
Алюминиевые дверные коробки
Петли
Замки и ручки
Ответные части для замка
<
Titan
Алюминиевые дверные коробки
Петли боковые
Замки с нажимной ручкой
<
HAG
Алюминиевые дверные коробки
Петли
Замки и ручки
Ответные части для замка
<
dormakaba
ARCOS
Studio Gala
Studio Rondo
SQUARE
+
Системы раздвижных дверей
<
Stif Glass
Серия SM
Серия SP
<
Titan
Серия «Гармоника»
Серия «Дельта»
Серия «Аура»
<
dormakaba
MUTO Comfort M 60
MUTO Comfort L 80 DORMOTION
MUTO Comfort XL 150
Agile 150 DORMOTION
+
Системы маятниковых дверей
<
Stif Glass
Серия SU
Серия SM
Стопоры
<
Titan
Серия «Классика»
Серия «Вектор»
<
dormakaba
Universal Light
+
Замки для стеклянных дверей
<
Stif Glass
Серия SU - замки
Серия SU - ответные части
<
Titan
Замки механические и ответные части
+
Коннекторы для крепления стекла
<
Stif Glass
Серия SU
Серия SF
Серия SM
<
Titan
Серия «Классика»
Серия «Точка»
Серия «Соединители»
<
dormakaba
UNIVERSAL LIGHT
+
Ручки для стеклянных дверей
<
Stif Glass
Ручки скобы
Ручки таблетки
Ручки с замком
<
Titan
Ручки таблетки
Ручки офисные
<
dormakaba
Ручки-скобы
+
Ручки для алюминиевых и деревянных дверей
<
Stif Glass
Ручки прямые
<
Titan
Ручки фигурные
+
Евроцилиндры
<
dormakaba
CBF-1 (ключ-ключ)
CBF-1 (ключ-вертушка)
CBR-1 (ключ-ключ)
CBR-1 (ключ-вертушка)
CBR-2 (ключ-ключ)
CBR-2 (ключ-вертушка)
+
Доводчики
<
Stif Glass
Доводчики
<
dormakaba
Дверные TS
Напольные BTS
+
Фурнитура для стеклянных ограждений
<
Stif Glass
Профиль для стеклянных ограждений
Поручни и держатели
Стойки и коннекторы
<
Titan
Профиль для стеклянных ограждений
+
Спайдеры и фурнитура для козырьков
<
Stif Glass
Спайдеры
Фурнитура для козырьков
<
Titan
Спайдеры
Фурнитура для козырьков
Распродажа фурнитуры
Развернуть
Категории товаров
Новинки
+
Алюминиевые профили для стекла
<
Stif Glass
Зажимной профиль
Опорные профили
Уплотнители
<
Titan
Зажимной профиль 40мм
<
HAG
Опорные профили
+
Фурнитура для душевых кабин
<
Stif Glass
Направляющие
Душевые комплекты
Коннекторы
Петли
Ручки, кнобы, защёлки
Стабилизационные штанги
Опорные штанги - круглая труба Ø18мм
Опорные штанги - квадратная труба 19х19мм
Опорные штанги - прямоугольная труба 30х10мм
Порожки
Уплотнительный ПВХ профиль
Магнитный ПВХ профиль
Фурнитура из цинкового сплава
<
Titan
Ручки и кнобы
Петли
Профиль уплотнительный
Система опорных штанг
+
Фурнитура для межкомнатных дверей
<
Stif Glass
Алюминиевые дверные коробки
Петли
Замки и ручки
Ответные части для замка
<
Titan
Алюминиевые дверные коробки
Петли боковые
Замки с нажимной ручкой
<
HAG
Алюминиевые дверные коробки
Петли
Замки и ручки
Ответные части для замка
<
dormakaba
ARCOS
Studio Gala
Studio Rondo
SQUARE
+
Системы раздвижных дверей
<
Stif Glass
Серия SM
Серия SP
<
Titan
Серия «Гармоника»
Серия «Дельта»
Серия «Аура»
<
dormakaba
MUTO Comfort M 60
MUTO Comfort L 80 DORMOTION
MUTO Comfort XL 150
Agile 150 DORMOTION
+
Системы маятниковых дверей
<
Stif Glass
Серия SU
Серия SM
Стопоры
<
Titan
Серия «Классика»
Серия «Вектор»
<
dormakaba
Universal Light
+
Замки для стеклянных дверей
<
Stif Glass
Серия SU - замки
Серия SU - ответные части
<
Titan
Замки механические и ответные части
+
Коннекторы для крепления стекла
<
Stif Glass
Серия SU
Серия SF
Серия SM
<
Titan
Серия «Классика»
Серия «Точка»
Серия «Соединители»
<
dormakaba
UNIVERSAL LIGHT
+
Ручки для стеклянных дверей
<
Stif Glass
Ручки скобы
Ручки таблетки
Ручки с замком
<
Titan
Ручки таблетки
Ручки офисные
<
dormakaba
Ручки-скобы
+
Ручки для алюминиевых и деревянных дверей
<
Stif Glass
Ручки прямые
<
Titan
Ручки фигурные
+
Евроцилиндры
<
dormakaba
CBF-1 (ключ-ключ)
CBF-1 (ключ-вертушка)
CBR-1 (ключ-ключ)
CBR-1 (ключ-вертушка)
CBR-2 (ключ-ключ)
CBR-2 (ключ-вертушка)
+
Доводчики
<
Stif Glass
Доводчики
<
dormakaba
Дверные TS
Напольные BTS
+
Фурнитура для стеклянных ограждений
<
Stif Glass
Профиль для стеклянных ограждений
Поручни и держатели
Стойки и коннекторы
<
Titan
Профиль для стеклянных ограждений
+
Спайдеры и фурнитура для козырьков
<
Stif Glass
Спайдеры
Фурнитура для козырьков
<
Titan
Спайдеры
Фурнитура для козырьков
Распродажа фурнитуры
12 месяцев гарантии
«Умный склад»
Индивидуальный подход
Гибкая система скидок
Сертифицированная продукция
Главная
/
Фурнитура для межкомнатных дверей
/
Titan
/
Алюминиевые дверные коробки
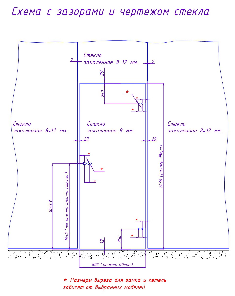
Схема дверной коробки TI-804